Ross Double Garage @
Accessed from a private road to the Southern boundary of our extremely popular Castle Gait development in East Wemyss, we are delighted to offer The Ross, detached executive bungalow.
Set on impressive South facing plots, these properties offer privacy and exclusivity beyond compare. Everything you would expect from an Easy Living Home but so much more. With generous, gated wrap around gardens and substantial driveways. The abundance of outdoor space to call your own coupled with exceptional quality throughout, this property affords buyers a unique opportunity to own a fabulous, modern bungalow located a stones throw from the stunning Fife coastal path.
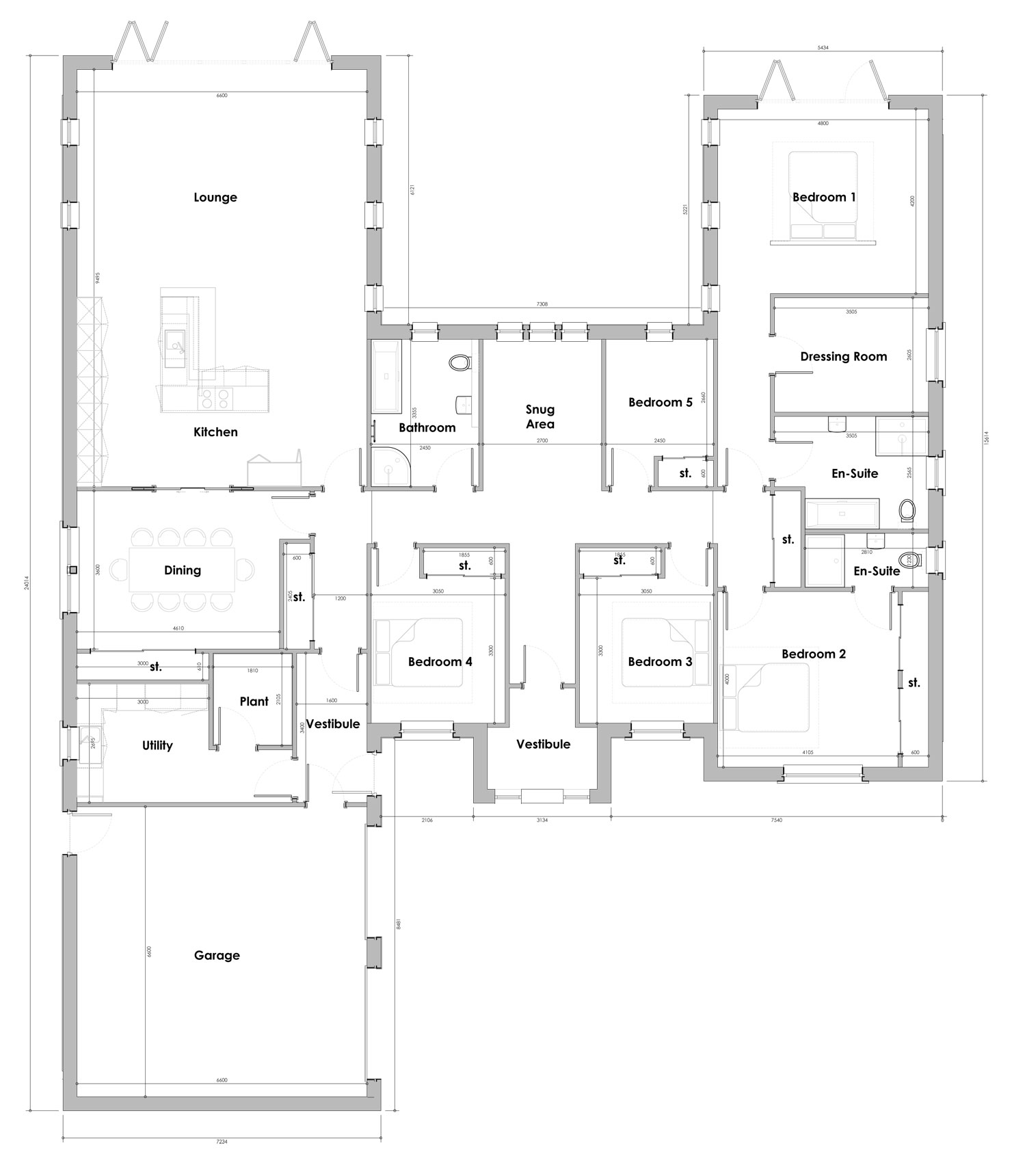
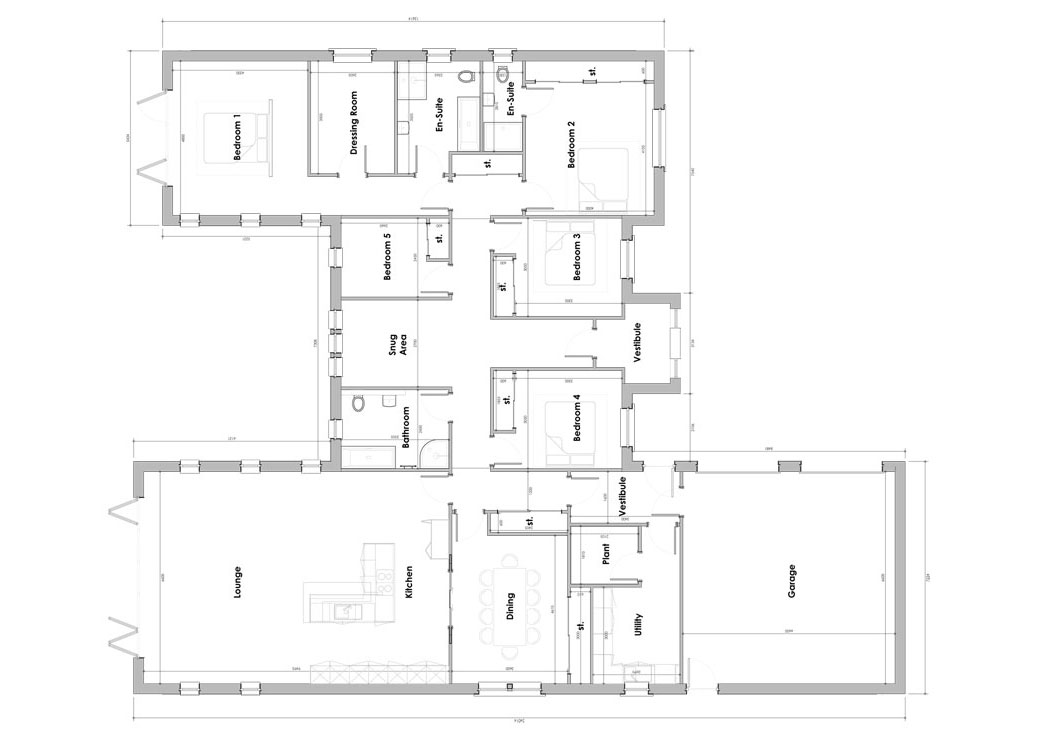
| Ground floor |
|
|---|---|
| Vestibule | 8' 3" x 7' 7"2525mm x 2318mm |
| Hall | 34' 1" x 14' 5"10380mm x 4390mm |
| Snug | 8' 10" x 11' 4"2700mm x 3463mm |
| Bathroom | 8' x 11' 1"2438mm x 3368mm |
| Lounge / Kitchen | 21' 9" x 31' 2"6625mm x 9508mm |
| Dining | 15' 2" x 11' 10"4623mm x 3600mm |
| Plant | 5' 11" x 6' 11"1810mm x 2105mm |
| Utility | 16' 2" x 8' 10"4918mm x 2685mm |
| Vestibule | 5' 3" x 11' 2"1600mm x 3400mm |
| Garage | 21' 8" x 21' 8"6613mm x 6613mm |
| Bedroom 1 | 15' 10" x 13' 10"4825mm x 4213mm |
| Dressing Room | 11' 7" x 8' 7"3518mm x 2605mm |
| Bedroom 1 En-Suite | 11' 7" x 8' 5"3518mm x 2565mm |
| Bedroom 2 | 13' 6" x 13' 2"4105mm x 4013mm |
| Bedroom 2 En-Suite | 9' 3" x 4' 1"2823mm x 1230mm |
| Bedroom 3 | 10' x 10' 10"3050mm x 3300mm |
| Bedroom 4 | 10' x 10' 10"3050mm x 3300mm |
| Bedroom 5 | 8' 1" x 11' 1"2450mm x 3368mm |
Please note that some properties are built handed (mirror image) to those illustrated.
These floor plans depict a typical layout of the house type. All dimensions are approximate and floor plans are not to scale.
These particulars are prepared with care for the convenience of prospective purchasers. We operate a policy of continuous product development and therefore individual features, specification and elevational treatments may vary from time to time.
CGI images are for guidance only.
Castle Gait Downloads
Make your dream home a reality!
Homes of the highest quality and specification.
